
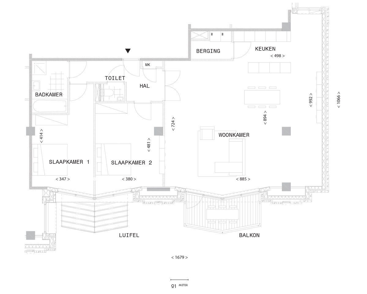
Appartement J heeft een extra breed front. U heeft een mooi balkon aan de voorzijde van uw woonkamer en ook de 2 slaapkamers kijken uit op het Walkart park en het raadhuis. Rechts achter, naast de keuken, heeft de architect nog een raam gecreëerd zodat daar ook daglicht binnenvalt.
Situering appartement op verdieping:

